BAUVORSCHAU GmbH
Innenbilder
Videos
Konfigurator
Einheiten
Über uns
Dokumente
Login
Menü
Innenbilder
Videos
Konfigurator
Einheiten
Über uns
Dokumente
Login
X
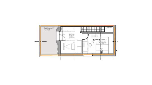
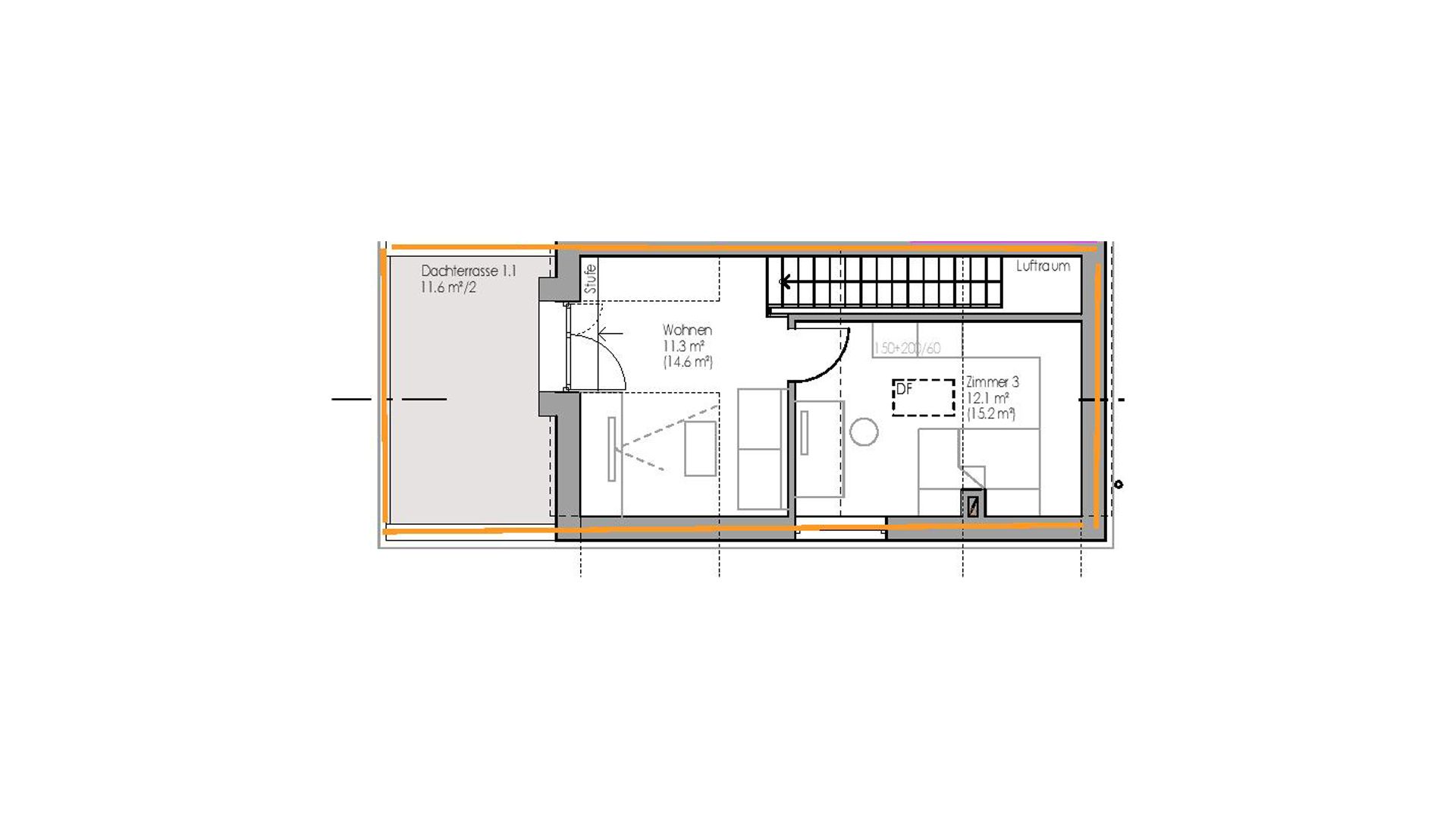
WE1/4
Normal
Previous
Next
Text 4
Loading...
E4
E4-2